<?xml version="1.0" encoding="windows-1250" ?>
<?xml-stylesheet type="text/xsl" href="RSS_xslt_style.asp" version="1.0" ?>
<rss version="2.0" xmlns:WebWizForums="https://syndication.webwiz.net/rss_namespace/">
 <channel>
  <title>CAD F&#243;rum : Kótování oken</title>
  <link>https://www.cadforum.cz/forum/</link>
  <description><![CDATA[Toto je XML obsahový kanál serveru; CAD F&#243;rum : Obecn&#283; o oboru CAD (CAx a BIM) : Kótování oken]]></description>
  <pubDate>Fri, 01 May 2026 07:37:03 +0000</pubDate>
  <lastBuildDate>Thu, 05 Apr 2012 16:50:50 +0000</lastBuildDate>
  <docs>http://blogs.law.harvard.edu/tech/rss</docs>
  <generator>Web Wiz Forums 12.04</generator>
  <ttl>360</ttl>
  <WebWizForums:feedURL>https://www.cadforum.cz/forum/RSS_post_feed.asp?TID=14886</WebWizForums:feedURL>
  <image>
   <title><![CDATA[CAD F&#243;rum]]></title>
   <url>https://www.cadforum.cz/forum/forum_images/web_wiz_forums.png</url>
   <link>https://www.cadforum.cz/forum/</link>
  </image>
  <item>
   <title><![CDATA[Kótování oken :  Dobr&#253; den,velmi praktick&#253; dotaz,...]]></title>
   <link>https://www.cadforum.cz/forum/forum_posts.asp?TID=14886&amp;PID=69580&amp;title=kotovani-oken#69580</link>
   <description>
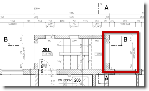
    <![CDATA[<strong>Autor:</strong> <a href="https://www.cadforum.cz/forum/member_profile.asp?PF=270">PepaR</a><br /><strong>Předmět:</strong> 14886<br /><strong>Zasláno:</strong> 05.dub.2012 v 16:50<br /><br />Dobrý den,<div><br></div><div>velmi praktický dotaz, který já osobně řeším následovně:</div><div><table width="99%"><tr><td class="BBquote"><img src="forum_images/quote_box.png" title="Citace" alt="Citace" style="vertical-align: text-bottom;" /> </div><div><div>Při kótování parapetu oken je výška parapetu vztahována k úrovni čistého podlaží, ale v případě schodišťové mezipodesty může toto kótování být zavádějící. Proto je vhodné namísto hodnoty parapetu uvést do závorek relativní hodnotu výšky vztaženou k 0,000.&nbsp;</div></div><div><b>Zdroj:</b> <a href="http://www.autodeskclub.cz/clanek/5581-autocad-ve-stavebni-praxi-6-dil-cast-a" target="_blank" rel="nofollow">AutoCAD ve stavební praxi, 6. díl (část A)</a></div><div></td></tr></table></div><div><br></div><div><b>Příklad:</b></div><div><img src="uploads/20120405_164906_JR_Pudorys.png" height="316" width="516" border="0" alt="Příklad%20kótování%20oken%20%28půdorys%29" /><br></div><div><img src="uploads/20120405_164946_JR_Rez.png" height="288" width="516" border="0" alt="Příklad%20kótování%20oken%20%28řez%29" /><br></div><div><br></div><div><b>PS pro pana Michla:</b> Nebylo by prosím vhodné toto téma přesunout do sekce <i>Projekční praxe</i>?</div><span style="font-size:10px"><br /><br />Upravil PepaR - 05.dub.2012 v 16:56</span>]]>
   </description>
   <pubDate>Thu, 05 Apr 2012 16:50:50 +0000</pubDate>
   <guid isPermaLink="true">https://www.cadforum.cz/forum/forum_posts.asp?TID=14886&amp;PID=69580&amp;title=kotovani-oken#69580</guid>
  </item> 
  <item>
   <title><![CDATA[Kótování oken :   zdravim,setkal jsem se s nekolika...]]></title>
   <link>https://www.cadforum.cz/forum/forum_posts.asp?TID=14886&amp;PID=69565&amp;title=kotovani-oken#69565</link>
   <description>
    <![CDATA[<strong>Autor:</strong> <a href="https://www.cadforum.cz/forum/member_profile.asp?PF=1515">VopluDa</a><br /><strong>Předmět:</strong> 14886<br /><strong>Zasláno:</strong> 05.dub.2012 v 12:08<br /><br />zdravim,<div>setkal jsem se s nekolika zpusoby:</div><div>1. uvedena celkova vyska okna a u parapetni vysky uveno podlazi, ve kterem se nachazi</div><div>2. v podlazi, kde parapet neni, tak taky neni uvedena jeho vyska, ale jen celkova vyska okna, takze treba 28000, z cehoz je jasne, ze okno je prubezne a parapetni vyska&nbsp;je uvedena jen v podlazi, kde parapet je.</div><div>3. v kazdem podlazi byla uvedena celkova vyska okna a parapetni vyska vztazena k podlaze aktualniho patra. takze minusova hodnota narustajici s kazdy podlazim</div><div> </div><div>ja pouzivam var. 2, abych kotoval stejne jak okna, tak i al.fasady</div>]]>
   </description>
   <pubDate>Thu, 05 Apr 2012 12:08:26 +0000</pubDate>
   <guid isPermaLink="true">https://www.cadforum.cz/forum/forum_posts.asp?TID=14886&amp;PID=69565&amp;title=kotovani-oken#69565</guid>
  </item> 
  <item>
   <title><![CDATA[Kótování oken : Zdrav&#237;m, cht&#283;l bych se zeptat...]]></title>
   <link>https://www.cadforum.cz/forum/forum_posts.asp?TID=14886&amp;PID=69560&amp;title=kotovani-oken#69560</link>
   <description>
    <![CDATA[<strong>Autor:</strong> <a href="https://www.cadforum.cz/forum/member_profile.asp?PF=35451">stanionp</a><br /><strong>Předmět:</strong> 14886<br /><strong>Zasláno:</strong> 05.dub.2012 v 09:55<br /><br /><P>Zdravím,</P><DIV>chtěl bych se zeptat jakým způsobem se kótují okna, která vedou přes dvě patra? V mém případě se jedná o okno, které se nachází ve schodišťovém prostoru, jehož parapet je ve výšce 2100 mm od podlahy 1PP a je vysoké 2850 mm,&nbsp;nadpraží je tedy&nbsp;ve výšce 2350 mm od podlahy 1NP. Okno mám zakreslené v půdorysu 1NP, ale nevím jakým způsobem mám zadat výšku parapetu, aby bylo zřejmé, že okno začíná v jiném podlaží?</DIV><DIV>&nbsp;</DIV><DIV>Děkuji za Vaše odpovědi a rady</DIV>]]>
   </description>
   <pubDate>Thu, 05 Apr 2012 09:55:29 +0000</pubDate>
   <guid isPermaLink="true">https://www.cadforum.cz/forum/forum_posts.asp?TID=14886&amp;PID=69560&amp;title=kotovani-oken#69560</guid>
  </item> 
 </channel>
</rss>