<?xml version="1.0" encoding="windows-1250" ?>
<?xml-stylesheet type="text/xsl" href="RSS_xslt_style.asp" version="1.0" ?>
<rss version="2.0" xmlns:WebWizForums="https://syndication.webwiz.net/rss_namespace/">
 <channel>
  <title>CAD F&#243;rum : rafy dle typu čáry</title>
  <link>https://www.cadforum.cz/forum/</link>
  <description><![CDATA[Toto je XML obsahový kanál serveru; CAD F&#243;rum : AutoCAD : rafy dle typu čáry]]></description>
  <pubDate>Tue, 21 Apr 2026 03:30:38 +0000</pubDate>
  <lastBuildDate>Fri, 07 Apr 2017 10:38:29 +0000</lastBuildDate>
  <docs>http://blogs.law.harvard.edu/tech/rss</docs>
  <generator>Web Wiz Forums 12.04</generator>
  <ttl>360</ttl>
  <WebWizForums:feedURL>https://www.cadforum.cz/forum/RSS_post_feed.asp?TID=24153</WebWizForums:feedURL>
  <image>
   <title><![CDATA[CAD F&#243;rum]]></title>
   <url>https://www.cadforum.cz/forum/forum_images/web_wiz_forums.png</url>
   <link>https://www.cadforum.cz/forum/</link>
  </image>
  <item>
   <title><![CDATA[rafy dle typu čáry :   alda napsal(a):... Zase nov&#225;...]]></title>
   <link>https://www.cadforum.cz/forum/forum_posts.asp?TID=24153&amp;PID=106446&amp;title=srafy-dle-typu-cary#106446</link>
   <description>
    <![CDATA[<strong>Autor:</strong> <a href="https://www.cadforum.cz/forum/member_profile.asp?PF=1045">johny</a><br /><strong>Předmět:</strong> 24153<br /><strong>Zasláno:</strong> 07.dub.2017 v 10:38<br /><br /><table width="99%"><tr><td class="BBquote"><img src="forum_images/quote_box.png" title="Původně odeslal(a) alda" alt="Původně odeslal(a) alda" style="vertical-align: text-bottom;" /> <strong>alda napsal(a):</strong><br /><br /><span style="color: rgb54, 69, 90; : rgb251, 251, 253;">... Zase nová proměnná.</span><div><span style="color: rgb54, 69, 90; : rgb251, 251, 253;">...</span></div></td></tr></table><div><br></div><div>A my jsme za ně rádi! Mnohem horí je kdy přijde nějaká novinka a nejde vypnout!!!</div>]]>
   </description>
   <pubDate>Fri, 07 Apr 2017 10:38:29 +0000</pubDate>
   <guid isPermaLink="true">https://www.cadforum.cz/forum/forum_posts.asp?TID=24153&amp;PID=106446&amp;title=srafy-dle-typu-cary#106446</guid>
  </item> 
  <item>
   <title><![CDATA[rafy dle typu čáry : HPLINETYPE zabralo. Zase nov&#225;...]]></title>
   <link>https://www.cadforum.cz/forum/forum_posts.asp?TID=24153&amp;PID=106433&amp;title=srafy-dle-typu-cary#106433</link>
   <description>
    <![CDATA[<strong>Autor:</strong> <a href="https://www.cadforum.cz/forum/member_profile.asp?PF=4547">alda</a><br /><strong>Předmět:</strong> 24153<br /><strong>Zasláno:</strong> 07.dub.2017 v 06:48<br /><br /><span style="color: rgb54, 69, 90; : rgb251, 251, 253;">HPLINETYPE zabralo. Zase nová proměnná.</span><div><span style="color: rgb54, 69, 90; : rgb251, 251, 253;">Děkuji.</span></div>]]>
   </description>
   <pubDate>Fri, 07 Apr 2017 06:48:30 +0000</pubDate>
   <guid isPermaLink="true">https://www.cadforum.cz/forum/forum_posts.asp?TID=24153&amp;PID=106433&amp;title=srafy-dle-typu-cary#106433</guid>
  </item> 
  <item>
   <title><![CDATA[rafy dle typu čáry : HPLINETYPE - viz Tip 11382 ]]></title>
   <link>https://www.cadforum.cz/forum/forum_posts.asp?TID=24153&amp;PID=106430&amp;title=srafy-dle-typu-cary#106430</link>
   <description>
    <![CDATA[<strong>Autor:</strong> <a href="https://www.cadforum.cz/forum/member_profile.asp?PF=9">Vladimír Michl</a><br /><strong>Předmět:</strong> 24153<br /><strong>Zasláno:</strong> 06.dub.2017 v 21:42<br /><br />HPLINETYPE - viz Tip 11382]]>
   </description>
   <pubDate>Thu, 06 Apr 2017 21:42:31 +0000</pubDate>
   <guid isPermaLink="true">https://www.cadforum.cz/forum/forum_posts.asp?TID=24153&amp;PID=106430&amp;title=srafy-dle-typu-cary#106430</guid>
  </item> 
  <item>
   <title><![CDATA[rafy dle typu čáry : Nem&#225;te v tom 2017 jinak nadefinovan&#233;...]]></title>
   <link>https://www.cadforum.cz/forum/forum_posts.asp?TID=24153&amp;PID=106425&amp;title=srafy-dle-typu-cary#106425</link>
   <description>
    <![CDATA[<strong>Autor:</strong> <a href="https://www.cadforum.cz/forum/member_profile.asp?PF=74">Peter Jirat</a><br /><strong>Předmět:</strong> 24153<br /><strong>Zasláno:</strong> 06.dub.2017 v 16:06<br /><br />Nemáte v tom 2017 jinak nadefinované cesty a acad najde jiný definiční soubor stejného jména?]]>
   </description>
   <pubDate>Thu, 06 Apr 2017 16:06:45 +0000</pubDate>
   <guid isPermaLink="true">https://www.cadforum.cz/forum/forum_posts.asp?TID=24153&amp;PID=106425&amp;title=srafy-dle-typu-cary#106425</guid>
  </item> 
  <item>
   <title><![CDATA[rafy dle typu čáry : Nev&#237;m. &#352;rafy krom&#283; typu SOLID...]]></title>
   <link>https://www.cadforum.cz/forum/forum_posts.asp?TID=24153&amp;PID=106424&amp;title=srafy-dle-typu-cary#106424</link>
   <description>
    <![CDATA[<strong>Autor:</strong> <a href="https://www.cadforum.cz/forum/member_profile.asp?PF=81">vbehun</a><br /><strong>Předmět:</strong> 24153<br /><strong>Zasláno:</strong> 06.dub.2017 v 15:26<br /><br />Nevím. <br>rafy kromě typu SOLID mají rafovací vzor a tedy i typ čáry definován v souboru *.pat.<br>]]>
   </description>
   <pubDate>Thu, 06 Apr 2017 15:26:47 +0000</pubDate>
   <guid isPermaLink="true">https://www.cadforum.cz/forum/forum_posts.asp?TID=24153&amp;PID=106424&amp;title=srafy-dle-typu-cary#106424</guid>
  </item> 
  <item>
   <title><![CDATA[rafy dle typu čáry : My si nerozum&#237;me. Ostatn&#237; objekty...]]></title>
   <link>https://www.cadforum.cz/forum/forum_posts.asp?TID=24153&amp;PID=106423&amp;title=srafy-dle-typu-cary#106423</link>
   <description>
    <![CDATA[<strong>Autor:</strong> <a href="https://www.cadforum.cz/forum/member_profile.asp?PF=4547">alda</a><br /><strong>Předmět:</strong> 24153<br /><strong>Zasláno:</strong> 06.dub.2017 v 15:22<br /><br />My si nerozumíme. Ostatní objekty jsou v pořádku. Definice čar je načtená z tého souboru. Jen ty rafy je nezobrazí a na ně zkouím co znám.&nbsp;]]>
   </description>
   <pubDate>Thu, 06 Apr 2017 15:22:31 +0000</pubDate>
   <guid isPermaLink="true">https://www.cadforum.cz/forum/forum_posts.asp?TID=24153&amp;PID=106423&amp;title=srafy-dle-typu-cary#106423</guid>
  </item> 
  <item>
   <title><![CDATA[rafy dle typu čáry : MEASUREMENT?In the drawing that...]]></title>
   <link>https://www.cadforum.cz/forum/forum_posts.asp?TID=24153&amp;PID=106422&amp;title=srafy-dle-typu-cary#106422</link>
   <description>
    <![CDATA[<strong>Autor:</strong> <a href="https://www.cadforum.cz/forum/member_profile.asp?PF=1045">johny</a><br /><strong>Předmět:</strong> 24153<br /><strong>Zasláno:</strong> 06.dub.2017 v 14:49<br /><br /><div>MEASUREMENT?</div><div><br></div><div><div>In the drawing that is messed up, do the following (in fact, do this for every one of your metric drawings)</div><div>&nbsp;</div><div>1. Enter the command MEASUREMENT and enter a value of 1</div><div>2. Enter the command LINETYPE, select and reload all the affected linetypes</div><div>3. Regen</div><div>&nbsp;</div><div>FYI</div><div>MEASUREMENT = 1 uses the ACADISO.lin for metric drawings</div><div>MEASUREMENT = 0 uses the ACAD.lin file for imperial drawings</div></div><div><br></div><span style="font-size:10px"><br /><br />Upravil johny - 06.dub.2017 v 14:57</span>]]>
   </description>
   <pubDate>Thu, 06 Apr 2017 14:49:19 +0000</pubDate>
   <guid isPermaLink="true">https://www.cadforum.cz/forum/forum_posts.asp?TID=24153&amp;PID=106422&amp;title=srafy-dle-typu-cary#106422</guid>
  </item> 
  <item>
   <title><![CDATA[rafy dle typu čáry : To asi nen&#237; ono. Ostatn&#237; objekty...]]></title>
   <link>https://www.cadforum.cz/forum/forum_posts.asp?TID=24153&amp;PID=106421&amp;title=srafy-dle-typu-cary#106421</link>
   <description>
    <![CDATA[<strong>Autor:</strong> <a href="https://www.cadforum.cz/forum/member_profile.asp?PF=4547">alda</a><br /><strong>Předmět:</strong> 24153<br /><strong>Zasláno:</strong> 06.dub.2017 v 14:28<br /><br />To asi není ono. Ostatní objekty jsou zobrazeny správně a reagují na změny celkových měřítek. Jen ty rafy nic nedělají.]]>
   </description>
   <pubDate>Thu, 06 Apr 2017 14:28:00 +0000</pubDate>
   <guid isPermaLink="true">https://www.cadforum.cz/forum/forum_posts.asp?TID=24153&amp;PID=106421&amp;title=srafy-dle-typu-cary#106421</guid>
  </item> 
  <item>
   <title><![CDATA[rafy dle typu čáry : LTSCALENebo pokuid jste v rozvrzeni...]]></title>
   <link>https://www.cadforum.cz/forum/forum_posts.asp?TID=24153&amp;PID=106420&amp;title=srafy-dle-typu-cary#106420</link>
   <description>
    <![CDATA[<strong>Autor:</strong> <a href="https://www.cadforum.cz/forum/member_profile.asp?PF=1045">johny</a><br /><strong>Předmět:</strong> 24153<br /><strong>Zasláno:</strong> 06.dub.2017 v 14:19<br /><br />LTSCALE<div>Nebo pokuid jste v rozvrzeni pak PSLTSCALE</div><div>příp. MSLTSCALE</div><span style="font-size:10px"><br /><br />Upravil johny - 06.dub.2017 v 14:22</span>]]>
   </description>
   <pubDate>Thu, 06 Apr 2017 14:19:41 +0000</pubDate>
   <guid isPermaLink="true">https://www.cadforum.cz/forum/forum_posts.asp?TID=24153&amp;PID=106420&amp;title=srafy-dle-typu-cary#106420</guid>
  </item> 
  <item>
   <title><![CDATA[rafy dle typu čáry : Zdrav&#237;m.P&#345;esko&#269;il jsem na nov&#283;j&#353;&#237;...]]></title>
   <link>https://www.cadforum.cz/forum/forum_posts.asp?TID=24153&amp;PID=106419&amp;title=srafy-dle-typu-cary#106419</link>
   <description>
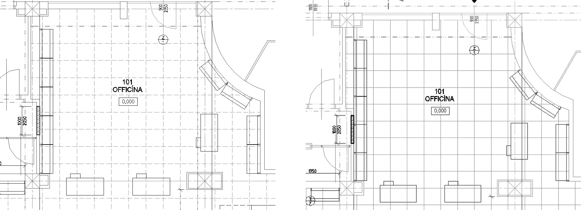
    <![CDATA[<strong>Autor:</strong> <a href="https://www.cadforum.cz/forum/member_profile.asp?PF=4547">alda</a><br /><strong>Předmět:</strong> 24153<br /><strong>Zasláno:</strong> 06.dub.2017 v 13:49<br /><br />Zdravím.<div>Přeskočil jsem na novějí ACAD 2017 a zjistil, e se nechtějí rafy zobrazovat dle typu čáry. Tentý výkres otevřený v ACAD 2012 fungoval správně viz obrázek. Nezjistil jsem co to ovlivňuje.</div><div><br></div><div>Díky za rady.</div><div><br></div><div><img src="uploads/4547/srafa.jpg" height="693" width="1912" border="0" align="left" /><br></div>]]>
   </description>
   <pubDate>Thu, 06 Apr 2017 13:49:22 +0000</pubDate>
   <guid isPermaLink="true">https://www.cadforum.cz/forum/forum_posts.asp?TID=24153&amp;PID=106419&amp;title=srafy-dle-typu-cary#106419</guid>
  </item> 
 </channel>
</rss>